Plansifter (Kare Elek), öğütme sürecinden gelen ürünün verimli şekilde sınıflandırılması için tasarlanmıştır.
Ürün girişi üst bölümden sağlanırken, elenmiş ürünler alt çıkış noktalarından düzenli olarak alınır. Çok katlı elek yapısı sayesinde farklı granülasyonlardaki ürünler hassas şekilde ayrıştırılır.
Bu yapı, yüksek eleme verimliliği sağlarken proses sürekliliğini artırır ve homojen ürün elde edilmesine katkıda bulunur.
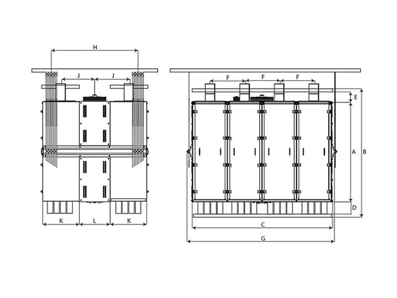
| Model | Ölçüler (mm) | ||||||||||
|---|---|---|---|---|---|---|---|---|---|---|---|
| A | B | C | D | E | F | G | H | J | K | L | |
| SRT EL 2/20 | 1710 | 2390 | 747 | 400 | 280 | 748 | 897 | 1510 | 748 | 790 | 615 |
| SRT EL 2/24 | 1865 | 2545 | 747 | 400 | 260 | 748 | 897 | 1510 | 748 | 790 | 615 |
| SRT EL 2/28 | 2150 | 2630 | 747 | 403 | 260 | 746 | 697 | 1510 | 748 | 760 | 615 |
| SRT EL 4/20 | 1710 | 2390 | 1500 | 400 | 280 | 748 | 1650 | 1510 | 748 | 790 | 615 |
| SRT EL 4/24 | 1865 | 2545 | 1500 | 400 | 280 | 748 | 1650 | 1510 | 748 | 790 | 615 |
| SRT EL 4/28 | 2150 | 2630 | 1500 | 400 | 260 | 748 | 1650 | 1510 | 748 | 790 | 615 |
| SRT EL 6/20 | 1710 | 2390 | 2248 | 400 | 280 | 748 | 2396 | 1510 | 748 | 790 | 615 |
| SRT EL S/24 | 1865 | 2390 | 2248 | 400 | 280 | 748 | 2398 | 1510 | 748 | 790 | 615 |
| SRT EL S/26 | 2150 | 2830 | 2248 | 400 | 280 | 748 | 2398 | 1510 | 748 | 790 | 615 |
| SRT EL 8/20 | 1710 | 2390 | 3050 | 400 | 260 | 748 | 3200 | 1510 | 748 | 790 | 615 |
| SRT EL a/24 | 1864 | 2545 | 3050 | 403 | 280 | 748 | 3200 | 1510 | 748 | 790 | 615 |
| SRT EL 8/28 | 2150 | 2830 | 3050 | 400 | 260 | 748 | 3200 | 1510 | 748 | 790 | 615 |